полное соответствие офисов А классу
Концепция business Center
от Comfort City group
Комфорт вашего бизнеса -
наша основная задача
Современный бизнес-центр с незаурядным архитектурным решением, отличным наполнением и местоположением.
Возможность приобретения офиса с ремонтом «под ключ», что позволит нашим клиентам полностью оградиться от организационных забот и сосредоточиться исключительно на рабочем процессе.
продажа офисов
с ремонтом «под ключ»
Стоимость продажи от 34 000 грн / кв. м
Полное соответствие офисов А классу
Полезная площадь объекта: 7 075 м2
Общая площадь: 10 600 м2
Этажность: 5 этажей
Высота потолков: 3,3 м
Площадь офисов от 47 м2 до 660 м2 с возможностью объединения
Локация:Объект находится на правом берегу в Центральном районе города Днепр, на проспекте П.Орлика

от ж/д вокзала
от аэропорта
варианты приобретения:
Оплата 100%
Наиболее выгодные условия покупки
Рассрочка от застройщика
Первоначальный взнос от 30%, сроком до 18 месяцев.
Кредитование от банков-партнеров
Кредит до 20 лет.
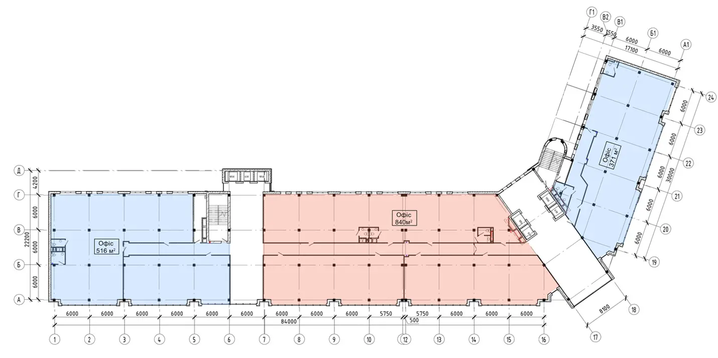
Площадь этажа: 1690 м2
Площадь коммерции на этаже: 1322,6 м2
Площадь этажа: 2016 м2
Площадь коммерции на этаже: 1460 м2
Площадь этажа: 2016 м2
Площадь коммерции на этаже: 1460 м2
Площадь этажа: 2016 м2
Площадь коммерции на этаже: 1460 м2
Площадь этажа: 2016 м2
Площадь коммерции на этаже: 1727 м2